nettleton tribe - sydney
logo
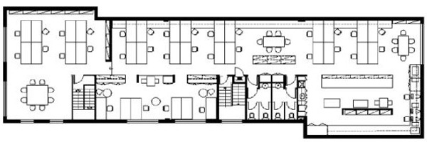
nettleton tribe floor plan
nettleton tribe office

an open working space designed to encourage a team environment and improve communication. 

allowing guests the opportunity to walk through the office, giving them the appreciation of the full extent of an architect / interior design company and the production involved.